クリスタルグランツ大阪センターSt. 7階
お手入れしやすくなっているので綺麗な状態を保ちやすい洗面化粧台が付いています。日々の暮らしに安心が欲しい方には、オートロック付きの物件がおすすめです。共用部には敷地内ごみ置き場・エレベータなどが揃っております。居住者用の駐輪場が付いている物件です。新築マンションです。ARCTURUSでなら、お客様のこだわりに合わせた住まい探しが可能です。大阪市西区でお部屋をお求めなら、当社にお任せください。
- 賃料
- 5.7万円
- 間取り
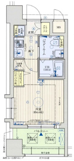
- 1K
- 専有面積
- 20.32㎡
- 所在階
- 7階
- 管理費・共益費
- 6,000円
- 敷金
- 0ヶ月
- 礼金
- 0ヶ月
初期費用シミュレーションこの物件を借りた場合の初期費用の一例です。
- 賃料
- 管理費・共益費
- 敷金:
- 礼金
- 前家賃(日割り) ※1
-
- 前家賃(日割り)
- 仲介手数料 ※2
- その他費用 ※3
- 合計
※1. 1か月を30日として計算しています。
※2. 仲介手数料は仮の価格となりますので、実際の価格に関してはお気軽にお問い合わせ下さい。
※3. その他費用の項目は、保険料、24時間サポート(2年一括)になります。
担当者のコメント 株式会社ARCTURUS

- 新着情報:クリスタルグランツ大阪センターSt.の空室情報ならコチラ。収納はクロゼット・シューズボックスなど豊富なので、衣類や履き物の整理がしやすく便利です。共用部には敷地内ごみ置き場・エレベータなどが揃っており、とても充実しています。知らない人が玄関前まで来ることが減るので防犯対策につながるオートロック機能がついております。皆さんからご要望の多い洗面化粧台付きの物件です。2駅利用できる立地となっていて、アクセスが良いです。自転車を停めることが可能な物件です。ARCTURUSでは九条周辺の賃貸情報を取り扱っております。住まい探しをするのであれば、当社をご活用ください。
ポイント・特徴
物件概要
【マンション】 物件番号:98239157 情報更新日:2025年11月15日 次回更新予定日:2025年11月29日| 所在地 | 大阪府大阪市西区九条南2丁目25-4 | ||
|---|---|---|---|
| 交通 | |||
| 間取り/詳細 | 1K | 面積/バルコニー面積 | 20.32㎡/- |
| 賃料 | 5.7万円 | 管理費・共益費 | 6,000円 |
| 敷金/礼金/保証金 | 0ヶ月/0ヶ月/- | 償却/敷引 | -/- |
| 更新料 | 1ヶ月(新賃料) | 敷金積み増し | - |
| 権利金/雑費 | -/- | 駐車場/月額料金 | -/- |
| 保険加入/料金 | 有/20,000円 | 保険名/保険期間 | -/2年 |
| 保証人代行義務/利用料 | 必加入/ 初回保証料:総賃料等の50% 引落手数料:550円/月 ※年額プランのみ利用可 | 保証会社 | Casa |
| 保証会社詳細 | 更新保証料:10,000円/毎年 | 向き | 南西 |
| 築年月(築年数) | 2011年 2月 (築14年) | 契約期間 | 2年 |
| 種別/構造 | マンション/鉄筋コンクリート | 部屋/所在階/階建 | 706/ 7階/ 15階建 |
| 総戸数 | - | 現況/入居可能日 | 空家/即時 |
| 特優賃 | - | 取引態様/賃貸区分 | 仲介/一般 |
| 物件番号 | 98239157 | 取引条件の有効期限 | 2025年11月29日 |
| 設備条件 |
|
||
| 備考 | 「クリスタルグランツ大阪センターSt.」のここがイチオシ。共用部にはエレベータ・敷地内ごみ置き場など様々な設備やサービスが揃っているので便利です。オートロック機能が付いているので、基本的に住民のみという環境は安心感につながります。付近に駅が2駅あり、行き先に応じて使い分けができます。交通の便の良さは、住まい探しの大事な決め手です。九条周辺のお部屋探しなら、当社へお気軽にご相談ください。 | ||
| 条件(その他) | 24時間サポート(2年一括):1万9,800円 鍵交換代(任意)※金額別途見積 室内清掃費用:5万8,850円 | ||
| 取扱会社 |
|
||
※地図上に表示される物件の位置は付近住所に所在することを表すものであり、実際の物件所在地とは異なる場合がございます。
















