エスリード森ノ宮駅前 8階
洗面所は浴室から独立しており、お風呂の湿気で曇りにくくなっています。共用部には宅配ボックスを設置しているため、対面で荷物を受け取らなくて済みます。セキュリティ面は、TVインターホン・オートロックなどを備え付けているので安心して暮らせます。賃料が月6.75万円の物件です。失敗したくないお部屋探しなら大阪市東成区や森ノ宮付近に強い当社へご連絡ください。信頼できるスタッフが対応致します。
- 賃料
- 7.75万円
- 間取り
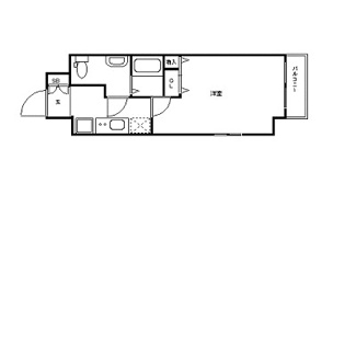
- 1K
- 専有面積
- 25.41㎡
- 所在階
- 8階
- 管理費・共益費
- 11,000円
- 敷金
- 0ヶ月
- 礼金
- 1ヶ月
初期費用シミュレーションこの物件を借りた場合の初期費用の一例です。
- 賃料
- 管理費・共益費
- 敷金:
- 礼金
- 前家賃(日割り) ※1
-
- 前家賃(日割り)
- 仲介手数料 ※2
- その他費用 ※3
- 合計
※1. 1か月を30日として計算しています。
※2. 仲介手数料は仮の価格となりますので、実際の価格に関してはお気軽にお問い合わせ下さい。
※3. その他費用の項目は、鍵交換代、保険料、事務手数料、退去時精算手数料になります。
担当者のコメント 株式会社ARCTURUS

- 「エスリード森ノ宮駅前」のここがイチオシ。不在時でも荷物を受け取れるため、時間調整の手間が省ける宅配ボックスが付いています。セキュリティ面は、オートロック・TVインターホンなどを設置しているので安全面でも優れております。入浴後でも温度や湿度に悩まされずに化粧やヘアメイクができる独立洗面台が付いております。夏も冬もお部屋で快適に過ごすためには欠かせないエアコン付きです。ぜひご覧いただきたい賃貸物件です。キッチン付きの物件です。もっとはうすで、これから先の新しい住まいをじっくり選んでいきましょう。わたくしたちがお手伝い致します。
ポイント・特徴
物件概要
【マンション】 物件番号:85697704 情報更新日:2025年11月15日 次回更新予定日:2025年11月29日| 所在地 | 大阪府大阪市東成区中道1丁目11-20 | ||
|---|---|---|---|
| 交通 | |||
| 間取り/詳細 |
1K 0.0帖/0.0帖/0.0帖/0.0帖/0.0帖/0.0帖 |
面積/バルコニー面積 | 25.41㎡/- |
| 賃料 | 7.75万円 | 管理費・共益費 | 11,000円 |
| 敷金/礼金/保証金 | 0ヶ月/1ヶ月/- | 償却/敷引 | -/- |
| 更新料 | 1ヶ月(新賃料) | 敷金積み増し | - |
| 権利金/雑費 | -/- | 駐車場/月額料金 | -/- |
| 保険加入/料金 | 有/20,000円 | 保険名/保険期間 | SBI日本少額短期保険/2年 |
| 保証人代行義務/利用料 | 必加入/ 初回保証料:総賃料の100% 更新時:20,000円/年毎 | 保証会社 | その他 |
| 保証会社詳細 | - | 向き | 西 |
| 築年月(築年数) | 2006年 4月 (築19年) | 契約期間 | 定期借家 2年 |
| 種別/構造 | マンション/鉄筋コンクリート | 部屋/所在階/階建 | 805/ 8階/ 11階建 地下1階 |
| 総戸数 | 70戸 | 現況/入居可能日 | 居住中/2026年01月上旬 |
| 特優賃 | - | 取引態様/賃貸区分 | 仲介/定期借家権 |
| 物件番号 | 85697704 | 取引条件の有効期限 | 2025年11月29日 |
| 設備条件 |
|
||
| 備考 | こだわりで選びたい方におすすめ。大阪市東成区エリアで住まいをお探しなら「エスリード森ノ宮駅前」。忙しい朝でも鏡を見ながらサッと身支度を整えられる独立洗面台を備えております。11階建ての物件となっています。新しい土地での新しい暮らし。大阪市東成区エリアや森ノ宮付近にあるお部屋をお探しなら、当社にお任せ下さい。素敵なお部屋をご紹介いたします。 | ||
| 条件(その他) | 事務手数料:2万2,000円 退去時精算手数料:5,500円 鍵交換代:3万3,000円 室内清掃費用:5万5,000円 水道代:2,000円(月額) リブクラブ:2,200円(月額) SBI少額短期保険:800円(月額) ■海外審査相談可 | ||
| 取扱会社 |
|
||
※地図上に表示される物件の位置は付近住所に所在することを表すものであり、実際の物件所在地とは異なる場合がございます。
















